Wyndways Port Eynon, Swansea, SA3 1NL

For Sale

£350,000


Brief Description »        Full Description »        Floor Plan »        EPC »        Location »       


.

Brief Description

A fantastic opportunity to acquire a two-bedroom detached bungalow in the sought-after coastal village of Port Eynon. In need of works throughout, this property offers great potential for investors, developers, or buyers looking for a project.

Set on a generous plot, the bungalow boasts a spacious garden. Located just a short distance from Port Eynon beach and local amenities, this is a rare chance to create a charming home or holiday let in a highly desirable location.

Early viewing is recommended to appreciate the potential on offer.


Full Description

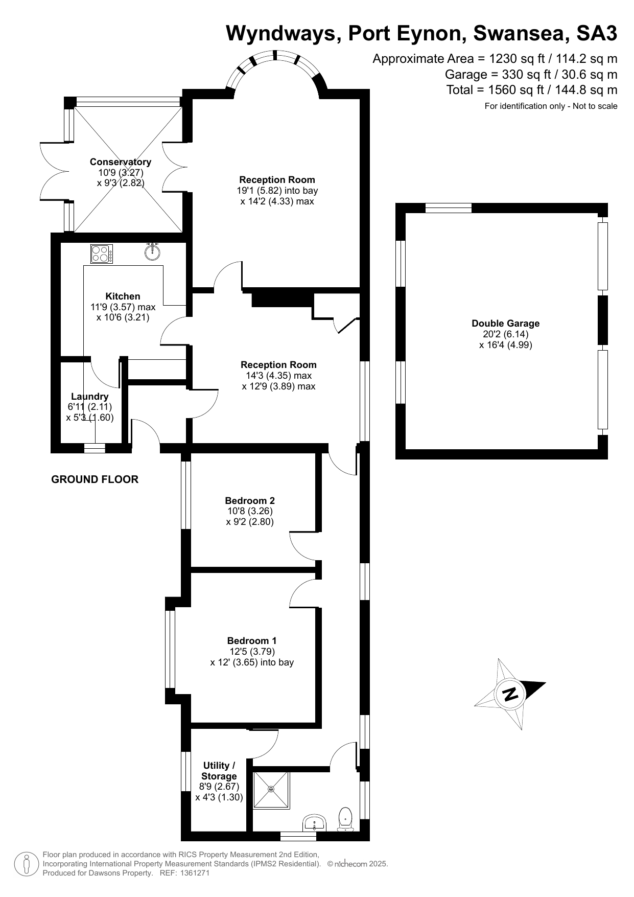
Ground Floor

Reception Room - 14'3" (max) x 12'9" (max) (4.35m (max) x 3.89m (max))

Reception Room - 19'1" (into bay) x 14'2" (max) (5.82m (into bay) x 4.33m (max))

Conservatory - 10'8" x 9'3" (3.27m x 2.82m)

Kitchen - 11'8" (max) x 10'6" (3.57m (max) x 3.21m )

Bedroom 1 - 12'5" x 11'11" (into bay) (3.79m x 3.65m (into bay) )

Bedroom 2 - 10'8" x 9'2" (3.26m x 2.80m)

Utility/ Storage - 8'9" x 4'3" (2.67m x 1.30m )

Laundry -6'11" x 5'2" (2.11m x 1.60m )

External

Double Garage - 20'1" x 16'4" (6.14m x 4.99m )

Large Garden

Off Road Parking

Council Tax Band - F

EPC - F

Tenure - Freehold

N.B
You are advised to refer to Ofcom checker for mobile signal and coverage.

Key Auction Guidelines for Bidders
1. Do Your Research: Investigate the property thoroughly, including reviewing the legal pack (available from Dawsons Auction House). Check the condition, title, and any restrictions.

2. Get Legal Advice: Consult a solicitor before bidding to clarify any legal or procedural concerns.
3. Understand Your Commitments: If you win, you must exchange contracts immediately, pay a 10% deposit, and a £3,500 buyer’s premium (incl. VAT) on the day.
4. Be Financially Ready: Completion is due within 28 days (unless stated otherwise), so ensure your finances are in place before bidding.
5. Fees Apply Regardless: The £3,500 buyer’s premium applies even if a pre auction offer is agreed. Being well-prepared is key to a smooth auction experience.


Floor Plan
Wyndways Port Eynon, Swansea, SA3 1NL floor plan
EPC
Wyndways Port Eynon, Swansea, SA3 1NL EPC
Location