Highfield House, Highfield Park Port Eynon, Swansea, SA3 1NN

Sold

£450,000


Brief Description »        Full Description »        Floor Plan »        EPC »        Location »       


Brief Description

Dawsons have the pleasure in offering for auction this substantial detached property situated in the exquisite coastal village of Port Eynon, where you'll discover an exceptional opportunity to embrace a life of comfort, luxury, and endless possibilities. Presenting a substantial 5-bedroom family home, accompanied by a delightful one-bedroom annexe, this remarkable property not only boasts spectacular ocean views but also offers an amazing renovation opportunity for a family with vision. Within a matter of minutes, you can wander into the village of Port Eynon and enjoy fish and chips, ice cream or visit the local shop, pubs and restaurants. This home really is the perfect place to escape from reality and appreciate this seaside home.

Freehold, Tax Band - H, Oil/Electric, Propane Calor Gas Bottles, Mains Water - Billed, Mains Drainage, Approx. 1.19 Acres, Restriction - only one family can occupy.


Full Description

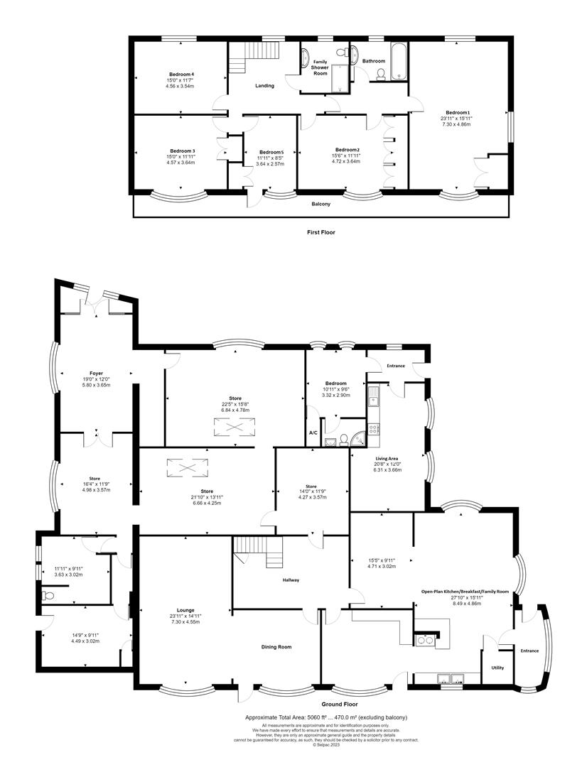
Entrance

Hallway

Open-Plan Kitchen/Dining/Family Room 27'10" x 15'11" 15'5" x 9'10" (8.49 x 4.86 4.71 x 3.02)

Utility

Lounge/Dining Room 23'11" x 14'11" (7.30 x 4.55)

Landing

Bedroom Four 14'11" x 11'7" (4.56 x 3.54)

Bedroom Three 14'11" x 11'11" (4.57 x 3.64)

Bedroom Five 11'11" x 8'5" (3.64 x 2.57)

Family Shower Room

Bedroom Two 15'5" x 11'11" (4.72 x 3.64)

Bedroom One 23'11" x 15'11" (7.30 x 4.86)

Bathroom

Annexe 20'8" x 12'0" 10'10" x 9'6" (6.31 x 3.66 3.32 x 2.90)

Former Club House
Highfield House is also distinguished by its seven versatile rooms, previously serving as the former club house for the beloved Highfield Park. Although currently utilised for storage purposes, these rooms present an excellent opportunity to expand the living
areas of this already spacious family home. 

Detached Double Garage

Step Outside...
The outside space at Highfield House enjoys a large, paved patio area that provides a great connection to the house, allowing for outdoor activities and relaxation. The mature garden is well-established, creating a sense of privacy, and boasts a central water
feature, as well as multiple lawns lined with mature trees. The enclosed grounds offer pathways that guide you around the property, leading you to various areas that are perfect for seating, providing a peaceful setting for observing and appreciating nature. Overall,
this outdoor area presents a great opportunity for someone to personalize and transform it into their own unique oasis.

Additional Property Information

Freehold
Tax Band - H
Oil/Electric
Propane Calor Gas Bottles
Mains Water - Billed
Mains Drainage
Approx. 1.19 Acres
Restriction - only one family can occupy

N.B
You are advised to refer to Ofcom checker for mobile signal and coverage.

Further Information
Please note it is the responsibility of all purchasers to conduct their own investigation into all aspects of the property. We recommend reading through the properties legal pack, which is available on our website, prior to bidding and also seek legal advice. If
you are successful, you will be required to pay a 10% deposit, together with the buyer’s premium/holding fee and complete in 28 days, therefore we would strongly recommend for you to ensure your finances are in place before the auction, due to the timescales
involved.

The holding fee is the buyer’s premium purchase fee which is £5,400. If you are the successful bidder, you are contractually bound to exchange, with a 10% deposit, on the property as per the terms and conditions you agreed to when registering for the
auction. With completion being 28 days later unless the contract states otherwise. Should the property sell prior to auction the same fee of £4,500 plus VAT is payable.


Floor Plan
Highfield House, Highfield Park Port Eynon, Swansea, SA3 1NN floor plan
EPC
Highfield House, Highfield Park Port Eynon, Swansea, SA3 1NN EPC
Location