93, Glanmor Road Uplands, Swansea, SA2 0QA

For Sale

£170,000


Brief Description »        Full Description »        Floor Plan »        EPC »        Location »       


Brief Description

FOR SALE BY PUBLIC AUCTION ON WEDNESDAY 12TH OF NOVEMBER 2025 IN THE SWANSEA.COM STADIUM.

A spacious Three-bedroom mid-terrace property situated on the sought-after Glanmor Road, offering fantastic potential for renovation. In need of works throughout, this property is ideal for investors or buyers looking for a project with scope to add value. Generously sized rooms and period features offer a great foundation for improvement. Conveniently located close to local amenities, schools, Swansea University, Uplands shops, and with easy access to the city centre and seafront, this is a superb opportunity in a high-demand area.


Full Description

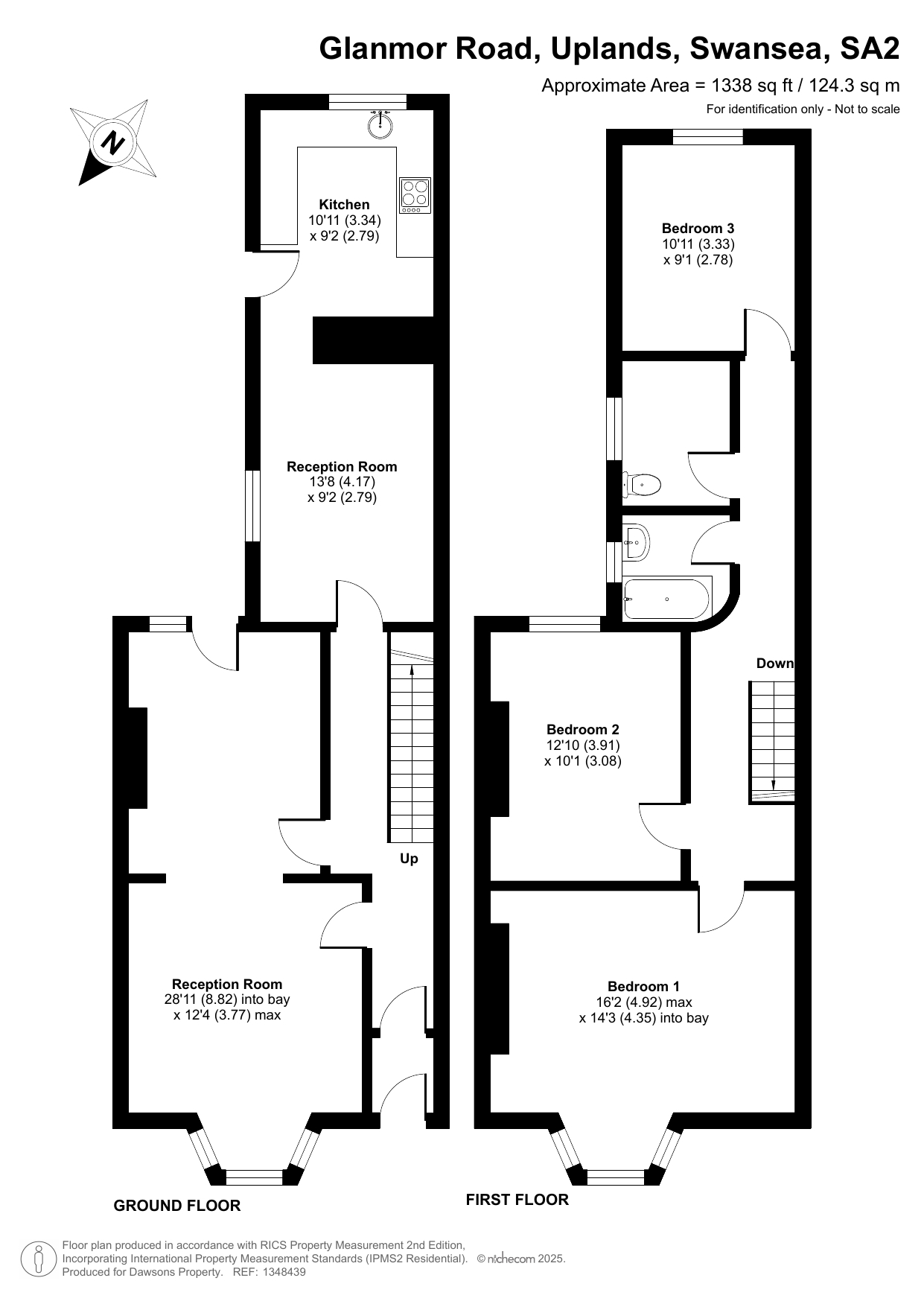
Ground Floor

Reception Room - 28'11" (into bay) x 12'4" (max) (8.82m (into bay) x 3.77m (max))

Reception Room - 13'8" x 9'1" (4.17m x 2.79m )

Kitchen - 10'11" x 9'1" (3.34m x 2.79m)

First Floor

Bedroom 1 - 16'1" (max) x 14'3" (into bay) (4.92m (max) x 4.35m (into bay) )

Bedroom 2 - 12'9" x 10'1" (3.91m x 3.08m )

Bedroom 3 - 10'11" x 9'1" (3.33m x 2.78m)

External

Garden to Rear

Steps up to the Property

Council Tax Band - D

Tenure - Freehold

EPC - D

N.B
You are advised to refer to Ofcom checker for mobile signal and coverage.

Key Guidelines For Auction Buyers
1. Do Your Research: Investigate the property thoroughly, including reviewing the legal pack (available from Dawsons Auction House). Check the condition, title, and any restrictions.
2. Get Legal Advice: Consult a solicitor before bidding to clarify any legal or procedural concerns.
3. Understand Your Commitments: If you win, you must exchange contracts immediately, pay a 10% deposit, and a £3,000 buyer’s premium (incl. VAT) on the day.
4. Be Financially Ready: Completion is due within 28 days (unless stated otherwise), so ensure your finances are in place before bidding.
5. Fees Apply Regardless: The £3,000 buyer’s premium applies even if a pre auction offer is agreed. Being well-prepared is key to a smooth auction experience


Floor Plan
93, Glanmor Road Uplands, Swansea, SA2 0QA floor plan
EPC
93, Glanmor Road Uplands, Swansea, SA2 0QA EPC
Location