27, Miers Street St. Thomas, Swansea, SA1 8BZ

For Sale

£70,000


Brief Description »        Full Description »        Floor Plan »        EPC »        Location »       


Brief Description

FOR SALE BY PUBLIC AUCTION ON WEDNESDAY 12TH OF NOVEMBER 2025 IN THE SWANSEA.COM STADIUM.

This two-bedroom property situated in St Thomas offers excellent potential for those looking to add value through renovation. In need of modernisation throughout, the home presents a blank canvas ideal for investors or buyers seeking a project.

Situated in a popular and well-connected location, the property benefits from, good transport links, and close proximity to local amenities. Once refurbished, it has the potential to become a desirable rental property or a lovely home for first-time buyers.

Viewing is highly recommended.


Full Description

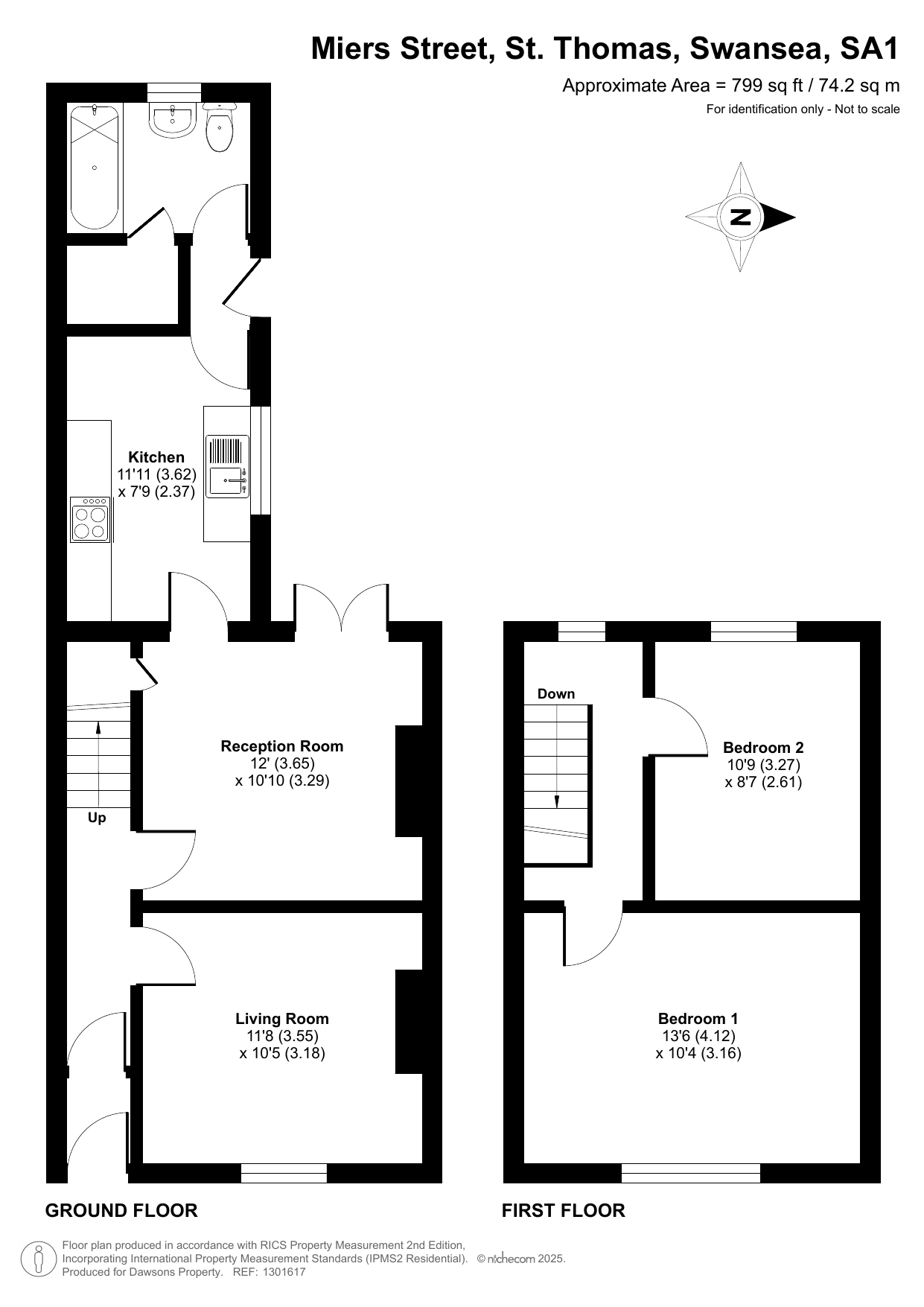
Floor Plan
27, Miers Street St. Thomas, Swansea, SA1 8BZ floor plan
EPC
27, Miers Street St. Thomas, Swansea, SA1 8BZ EPC
Location