23, Penallt Road Llanelli, SA15 1HF

Sold

£55,000


Brief Description »        Full Description »        Floor Plan »        EPC »        Location »       


Brief Description

AUCTION REGISTRATION IS NOW OPEN
THE BIDDING WILL OPEN ON THE 24TH OF NOVEMBER 2025

A fantastic investment opportunity in Llanelli — this two-bedroom property is in need of complete renovation, offering huge potential for capital growth or resale. Located in a convenient area with access to local amenities and transport links, it’s ideal for investors or developers looking to take on a full refurbishment project. With the right vision and improvements, this property could achieve a strong return on investment.

Early viewing is highly recommended.


Full Description

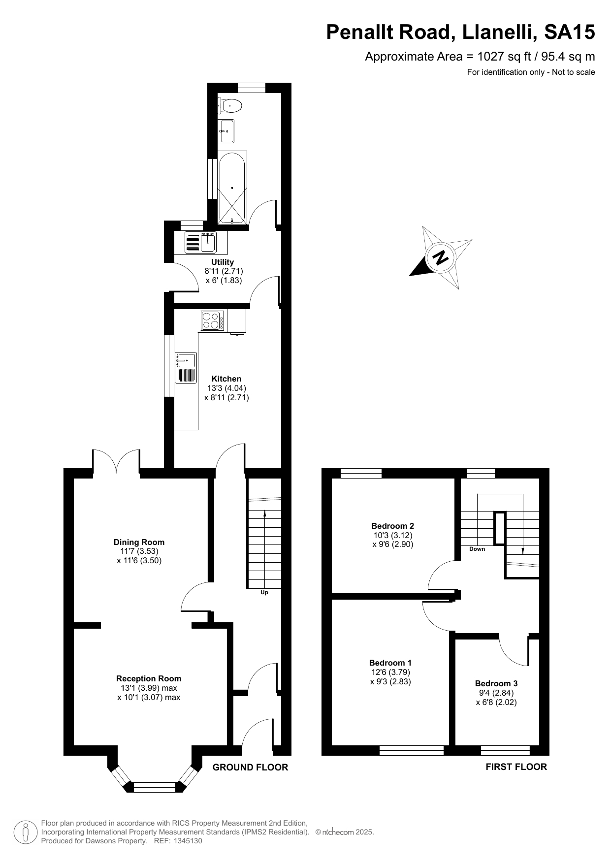
Ground Floor

Reception Room - 13'1" (max) x 10'0" (max) (3.99m (max) x 3.07m (max))

Dining Room - 11'6" x 11'5" (3.53m x 3.50m )

Kitchen - 13'3" x 8'10" (4.04m x 2.71m )

Utility - 8'10" x 6'0" (2.71m x 1.83m)

First Floor

Bedroom 1 - 12'5" x 9'3" (3.79m x 2.83m )

Bedroom 2 - 10'2" x 9'6" (3.12m x 2.90m )

Bedroom 3 - 9'3" x 6'7" (2.84m x 2.02m )

External

Garden to Rear

Council Tax Band - B

EPC - E

Tenure - Freehold

N.B

You are advised to refer to Ofcom checker for mobile signal and coverage.

Key Auction Guidelines for buyers

1. Do Your Research: Investigate the property thoroughly, including reviewing the legal pack (available from Dawsons Auction House). Check the condition, title, and any restrictions.
2. Get Legal Advice: Consult a solicitor before bidding to clarify any legal or procedural concerns.
3. Understand Your Commitments: If you win, you must exchange contracts immediately, pay a 10% deposit, and a £3,000 buyer’s premium (incl. VAT) on the day.
4. Be Financially Ready: Completion is due within 28 days (unless stated otherwise), so ensure your finances are in place before bidding.
5. Fees Apply Regardless: The £3,000 buyer’s premium applies even if a pre auction offer is agreed. Being well-prepared is key to a smooth auction experience.


Floor Plan
23, Penallt Road Llanelli, SA15 1HF floor plan
EPC
23, Penallt Road Llanelli, SA15 1HF EPC
Location