186, Newton Road Newton, Swansea, SA3 4UD

For Sale

£180,000


Brief Description »        Full Description »        Floor Plan »        EPC »        Location »       


Brief Description

This two-bed mid-terrace in Newton/Mumbles offers a compelling investment proposition: excellent location, proven market demand, prior rental use and renovation scope to deliver capital appreciation). With the right refurbishment plan and marketing, this property could appeal strongly to both investors and lifestyle buyers.

Early viewings is highly recommended.


Full Description

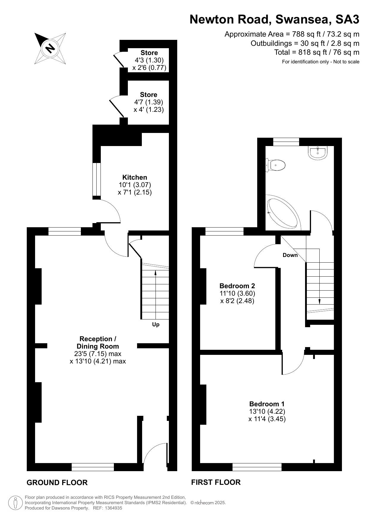
Ground Floor

Reception/ Dining Room - 23'5" (max) x 13'9" (max) (7.15m (max) x 4.21m (max) )

Kitchen - 10'0" x 7'0" (3.07m x 2.15m )

Store - 4'6" x 4'0" (1.39m x 1.23m )

Store - 4'3" x 2'6" (1.30m x 0.77m )

First Floor

Bedroom 1 - 13'10" x 11'3" (4.22m x 3.45m )

Bedroom 2 - 11'9" x 8'1" (3.60m x 2.48m )

External

Garden to the Rear

EPC - D

Council Tax Band - E

Tenure - Freehold

N.B
You are advised to refer to Ofcom checker for mobile signal and coverage.

Key Auction Guidelines for Bidders
1. Do Your Research: Investigate the property thoroughly, including reviewing the legal pack (available from Dawsons Auction House). Check the condition, title, and any restrictions.
2. Get Legal Advice: Consult a solicitor before bidding to clarify any legal or procedural concerns.
3. Understand Your Commitments: If you win, you must exchange contracts immediately, pay a 10% deposit, and a £3,000 buyer’s premium (incl. VAT) on the day.
4. Be Financially Ready: Completion is due within 28 days (unless stated otherwise), so ensure your finances are in place before bidding.
5. Fees Apply Regardless: The £3,000 buyer’s premium applies even if a pre auction offer is agreed. Being well-prepared is key to a smooth auction experience.


Floor Plan
186, Newton Road Newton, Swansea, SA3 4UD floor plan
EPC
186, Newton Road Newton, Swansea, SA3 4UD EPC
Location