15, Park Street Mumbles, Swansea, SA3 4DA

For Sale

£200,000


Brief Description »        Full Description »        Floor Plan »        EPC »        Location »       


Brief Description

AUCTION REGISTRATION IS NOW OPEN
THE BIDDING WILL OPEN ON THE 10TH OF DECEMBER 2025 AT 1PM AND WILL CLOSE ON THE 10TH OF DECEMBER AT 2PM.

A fantastic opportunity to purchase a two-bedroom property in the heart of Mumbles, located in the popular Park Street. Just a short stroll from the seafront and local amenities, this home offers huge potential for renovation and modernisation.

Perfect for investors or developers, the property could achieve strong returns once refurbished, with excellent rental and resale potential given its sought-after coastal location.

This an ideal investment opportunity close to the beach and all that Mumbles has to offer.


Full Description

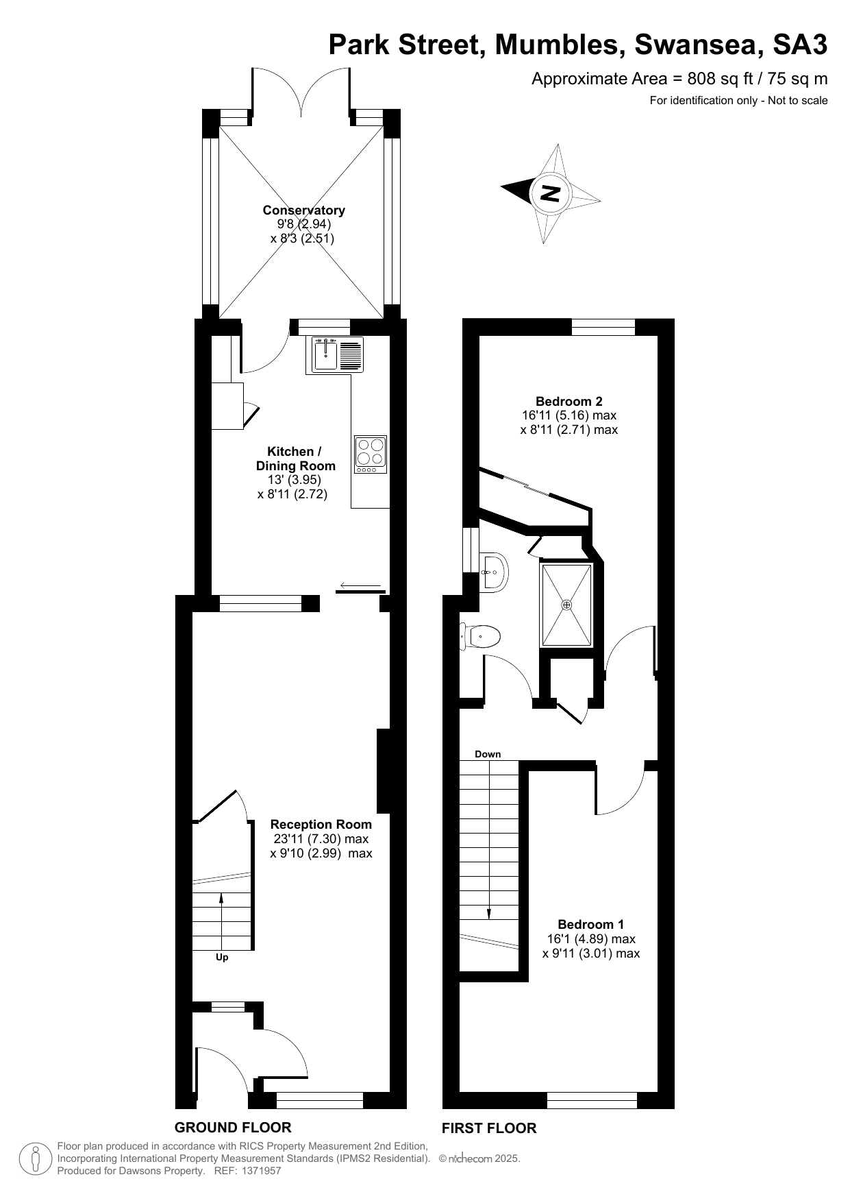
Ground Floor

Reception Room - 23'11" (max) x 9'9" (max) (7.30m (max) x 2.99m (max) )

Kitchen/Dining Room - 12'11" x 8'11" (3.95m x 2.72m )

Conservatory - 9'7" x 8'2" (2.94m x 2.51m )

First Floor

Bedroom 1 - 16'0" (max) x 9'10" (max) (4.89m (max) x 3.01m (max) )

Bedroom 2 - 16'11" (max) x 8'10" (max) (5.16m (max) x 2.71m (max) )

External

Garden to the Rear

Council Tax Band - D

Tenure - Freehold

EPC - D

N.B
You are advised to refer to Ofcom checker for mobile signal and coverage.

Key Auction Guidelines for
Bidders
1. Do Your Research: Investigate the property thoroughly, including reviewing the legal pack (available from Dawsons Auction House). Check the condition, title, and any restrictions.
2. Get Legal Advice: Consult a solicitor before bidding to clarify any legal or procedural concerns.
3. Understand Your Commitments: If you win, you must exchange contracts immediately, pay a 10% deposit, and a £3,000 buyer’s premium (incl. VAT) on the day.
4. Be Financially Ready: Completion is due within 28 days (unless stated otherwise), so ensure your finances are in place before bidding.
5. Fees Apply Regardless: The £3,000 buyer’s premium applies even if a pre auction offer is agreed. Being well-prepared is key to a smooth auction experience.


Floor Plan
15, Park Street Mumbles, Swansea, SA3 4DA floor plan
EPC
15, Park Street Mumbles, Swansea, SA3 4DA EPC
Location